Van den Endelaan 127 _ Hillegom
Licht, ruimte en rust _ wonen in de geliefde Margarethaflat
Welkom aan de Van den Endelaan, midden in Hillegom.
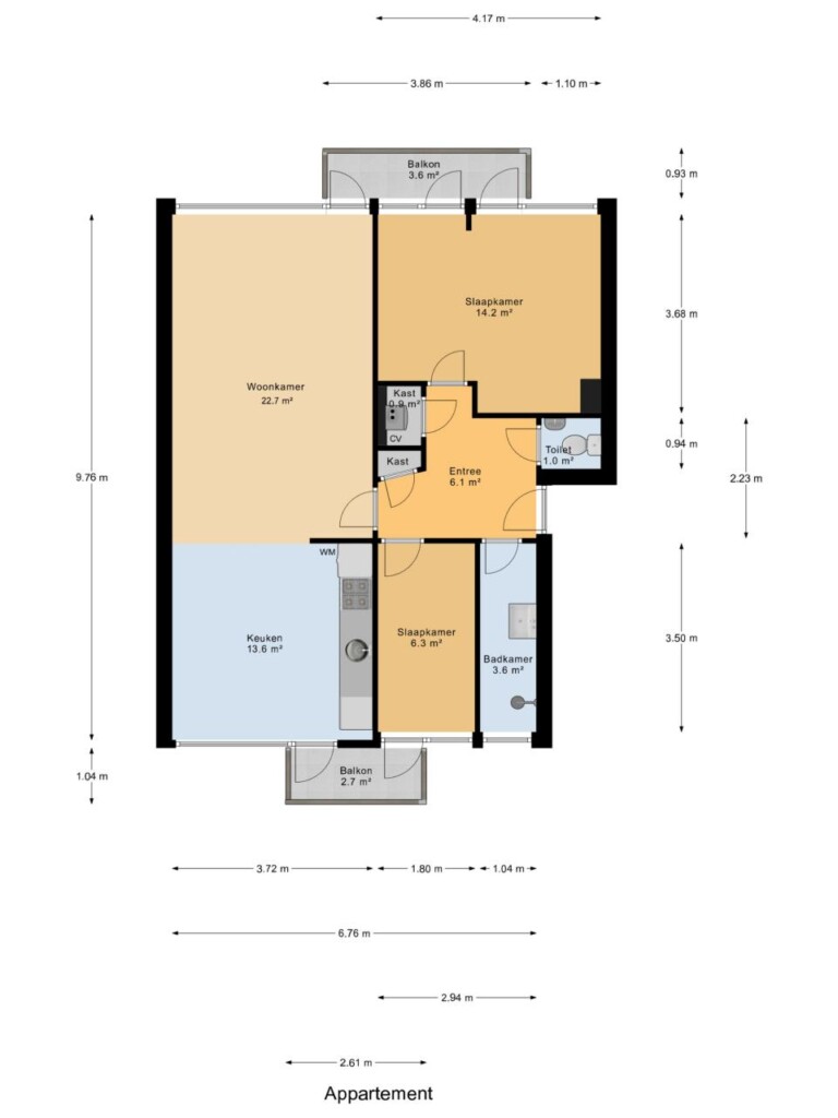
Hier, op de tweede verdieping van de gewilde Margarethaflat, ligt dit lichte en sfeervolle 3-kamerappartement (voorheen 4 kamers).
Een woning met een heerlijk gevoel van ruimte, aan beide zijden een balkon, een eigen berging én een inpandige garage.
Een perfecte plek voor wie comfortabel wil wonen op een centrale, groene locatie op loopafstand van het centrum.
Licht, lucht en leefruimte
Bij binnenkomst valt direct de ruime woonkamer op _ extra groot doordat een voormalige slaapkamer is samengevoegd met de living.
Het resultaat: een heerlijke doorzonkamer met volop licht, een prettig uitzicht op het groen en ruimte voor zowel een zit- als eethoek.
Via de deur stap je het balkon op: een zonnige plek waar je tot laat in de middag van de zon kunt genieten.
Sfeervol en verzorgd
De keuken is praktisch ingericht en voorzien van de nodige apparatuur.
De twee slaapkamers zijn licht en van goed formaat, ideaal als hoofdslaapkamer en werkkamer of logeerruimte.
De badkamer is netjes uitgevoerd met een douche, wastafelmeubel en designradiator; het toilet is separaat.
De woning is keurig onderhouden en biedt volop mogelijkheden om naar eigen smaak te moderniseren.
Comfortabel en zorgeloos wonen
De Margarethaflat staat bekend om haar degelijke bouw, rustige sfeer en actieve Vereniging van Eigenaars.
Het complex wordt uitstekend onderhouden _ er is een actueel meerjarenonderhoudsplan (MJOP) en een gezonde kaspositie.
De maandelijkse bijdrage omvat onder meer de stookkosten, het onderhoud van het gebouw en de schoonmaak van de gemeenschappelijke ruimten.
Alles is dus keurig geregeld, zodat jij zorgeloos kunt wonen.
Het appartementencomplex ligt op een afgeschermd, ruim stuk eigen grond met diverse gemeenschappelijke zitplekken in de verzorgde tuin en een eigen parkeerterrein.
Feiten op een rij
-Woonoppervlakte: 71 m² (conform NEN 2580)
-Ruime slaapkamer (14.2 m2)
-Badkamer vernieuwd in 2020
-Voor en achter balkon:
-Externe berging met elektra ca. 6 m²
-Garage met elektra: ca. 21 m² (apart eigendom)
-Bouwjaar complex: 1965
-Keurig aangelegde gezamenlijke tuin met diverse zitplaatsen
-Eigen parkeerterrein.
-Verwarming: blokverwarming, warm water via boiler (eigendom)
-MJOP aanwezig
-Actieve en gezonde VvE met actief beheer
Ligging
De locatie is ideaal: rustig, maar toch dicht bij alles.
Binnen enkele minuten wandel je naar de winkels en horeca van het dorpscentrum, het NS-station of de supermarkt.
De duinen, bollenvelden en het strand liggen op fietsafstand, en via de N208 of A44 ben je zo in Haarlem, Leiden of Amsterdam.
Hier woon je in een dorp met een warme sfeer, omringd door natuur én met alle voorzieningen binnen handbereik.
Kortom
Een verzorgd en licht 3-kamerappartement (voorheen 4) met twee balkons, berging én garage.
Met zijn fijne indeling, zonnige ligging en uitstekende onderhoudsstaat is dit een heerlijke plek om thuis te komen _ comfortabel, rustig en met een vleugje karakter.







































