Ben je op zoek naar een woning met veel mogelijkheden?
Op een rustige, groene locatie in de geliefde wijk Presikhaaf-Oost (Arnhem) ligt deze woning met veel mogelijkheden. Een perfect samenspel van rust, ruimte en bereikbaarheid maakt deze woning bijzonder aantrekkelijk.
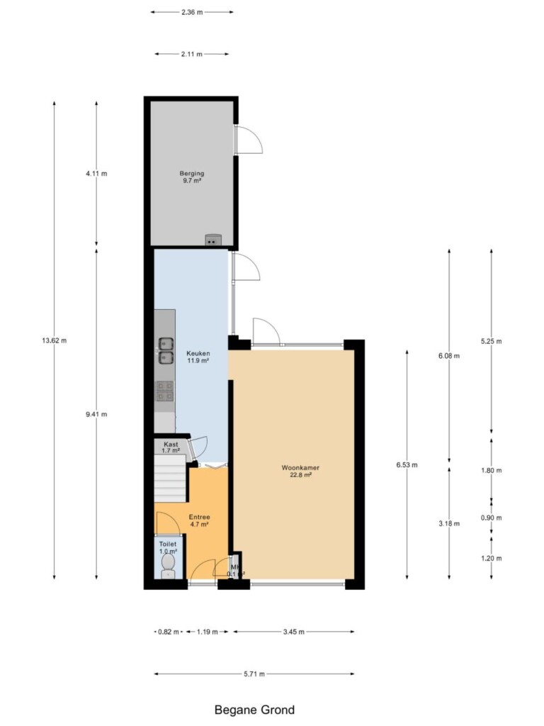
Indeling:
Hal, toilet, bergkast, dichte keuken met inbouwapparatuur te weten: oven, gaskookplaat en afzuigkap en woonkamer. Eerste verdieping: overloop, toilet, badkamer met douche en wastafel en drie slaapkamers . Uitgebouwde slaap/zolderkamer met veel bergruimte
Locatie & omgeving
Wonen op de Wildenborglaan betekent centraal en toch rustig wonen. Winkelcentrum Presikhaaf en Velp zijn dichtbij, scholen en voorzieningen zijn in de directe omgeving aanwezig en de uitvalswegen (zoals de A325 en A12) zijn binnen enkele minuten bereikbaar. Bovendien is het een kindvriendelijke wijk met veel groen en water _ perfect voor zowel gezinnen als stellen of singles die comfort zoeken.
Bijzonderheden: – het woonhuis is gelegen in een kindvriendelijke wijk, nabij parken, speeltuin, Nationaal Park Veluwezoom, de rivier de ‘IJssel’, landgoed ‘Biljoen’ en uiterwaarden; -); – het woonhuis is voor een groot gedeelte voorzien van kunststof kozijnen met dubbel glas; – goed bereik met het openbaar vervoer naar het centrum van Arnhem; – gunstig op de zon gelegen
Vraagprijs € 304.000.-
Energielabel: C
CV ketel: Remeha bouwjaar 2024 type Tzerra ACE-Matic





























