Op zoek naar een uitstekend onderhouden tweekamerappartement met een royaal en zonnig balkon? Kom dan zeker eens een kijkje nemen in deze fijne woning. Direct als je binnenstapt merk je dat deze woning met zorg is onderhouden. In 2021 is er veel vernieuwd en gemoderniseerd, waardoor je het nu zó kunt betrekken. Niet alleen de nieuwe keuken en badkamer springen in het oog, maar let ook eens op de hoge plinten, nieuwe binnendeuren en het goed verzorgde schilderwerk. Het hoekappartement is gelegen op de bovenste etage en biedt daarmee een fraai uitzicht over de woonwijk. Het voordeel is dat je met de extra ramen aan de zijkant profiteert van veel lichtinval. Op het balkon van 14m2 is het heerlijk relaxen!
Bij deze woning hoort een eigen vaste parkeerplaats in de onderliggende afgesloten parkeergarage met automatische deur en verwarmde oprit. Zo hoef je nooit ver te lopen met je boodschappen of je druk te maken of er wel plek is. Het appartement grenst nagenoeg aan winkelcentrum ‘De Balken’ en ligt op loopafstand van een supermarkt die zeven dagen per week geopend is. Ook bevinden zich in de nabijheid een gezondheidscentrum, sportfaciliteiten en enkele scholen. Uitvalswegen, het busstation van Huizen maar ook de fraaie natuurgebieden zijn alle binnen handbereik, waardoor deze woning ideaal is gelegen!
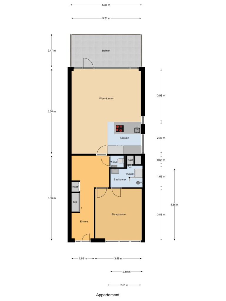
Indeling: Entree, ruime hal met garderobe en kastenwand (met daarnaast meer dan voldoende ruimte om een werkplek te creëren). Ruime slaapkamer aan de voorzijde. Moderne badkamer met een inloopdouche en wastafelmeubel, inclusief aansluiting voor was- en droogmachine. Apart toilet met modern hangcloset. Woonkamer met moderne open keuken voorzien van een luxe werkblad en diverse A-merk inbouwapparatuur (elektrische kookplaat met afzuiging, combi-oven/magnetron, vaatwasser, koel-/vriescombinatie). Vanuit de woonkamer is er toegang tot het royale balkon aan de achterzijde van het appartement. In de onderbouw van het complex bevindt zich de ruime berging.
Bijzonderheden:
Moderne keuken en badkamer (2021)
Uitstekende afwerking
Nieuwe groepenkast (2021)
Eigen parkeerplek in afgesloten parkeergarage
Servicekosten 377,00 euro per maand (is inclusief 160,00 euro stookkosten per maand.)
Starterslening mogelijk van maximaal € 30.000
Kortom, een ideaal en betaalbaar appartement op een mooie locatie. Onze makelaar laat het je graag van binnen zien; je bent van harte welkom!





























