Sfeervolle jaren ’30 woning op steenworp afstand van de binnenstad
Deze verrassend ruime jaren ’30 woning met 6 kamers en een tuin heeft een zeer centrale ligging. Vanaf de woning loop je binnen 10 minuten door de gezellige Vechtstraat en Thomas à Kempisstraat naar het historische centrum van Zwolle. In de directe omgeving zijn veel scholen, winkels en supermarkten te vinden. Voor groenliefhebbers is het 5 minuutjes fietsen naar het park de Wezenlanden en als je buiten Zwolle moet zijn zit je in no time op de A28.
Kortom, een heerlijke eengezinswoning die met haar 6 (slaap)kamers volop ruimte biedt!
Indeling
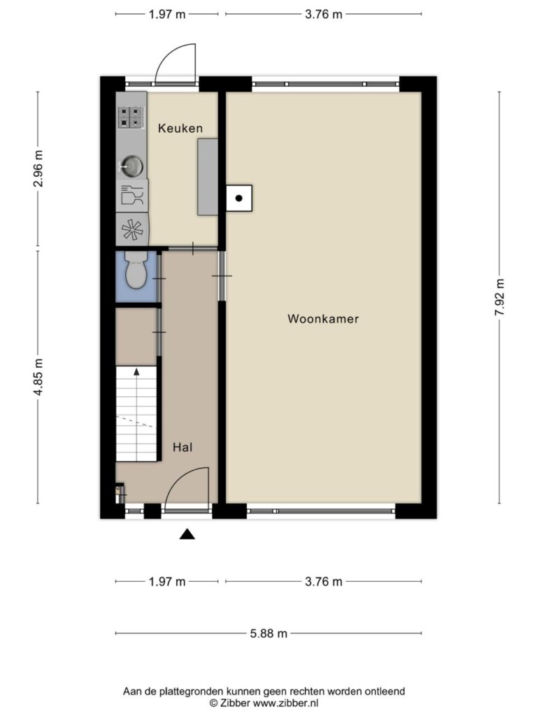
– Begane grond: hal / entree, trapopgang, toegang tot de kelder, toilet, woonkamer, neutrale keuken met inbouwapparatuur en moderne plintboiler, toegang tot de achtertuin / terras.
– Verdieping: overloop, 3 slaapkamers, balkon, badkamer met douche, wastafel + wastafelmeubel en 2e toilet.
– Tweede verdieping: 2 slaapkamers en een technische ruimte met plaats voor een wasmachine/droger.
– Zolderruimte.
– Gehele woning is voorzien van HR++ glas
– Dak is opnieuw geïsoleerd
– Aan voor- en achterzijde van de woning zijn een aantal nieuwe kunststof kozijnen en deuren geplaatst
– Het houtwerk aan de buitenzijde van de woning is geheel opnieuw geschilderd: voordeur, dakgoten en sierlijsten in antraciet en de overige kozijnen gebroken wit
Huurprijs:€1.850 per maand exclusief gas, water en electa
Aanvaarding:1 februari 2026
Waarborgsom:1 maand huur
Energielabel: B
Heb je interesse om de woning te komen bezichtigen? Neem dan contact met ons op voor de mogelijkheden!
Er wordt een selectie gemaakt uit de belangstellenden voor de bezichtiging van de woning.
Van de geselecteerde kandidaten wordt gevraagd hun identiteits- en inkomensgegevens te verstrekken.
Zij geven toestemming om deze gegevens te controleren, onder andere via online registers.
Ondanks de vele kamers is de woning niet bestemd voor kamerverhuur.
































