Sfeervolle jaren ’20 woning met dakterras op het zuiden in het geliefde Rode Dorp
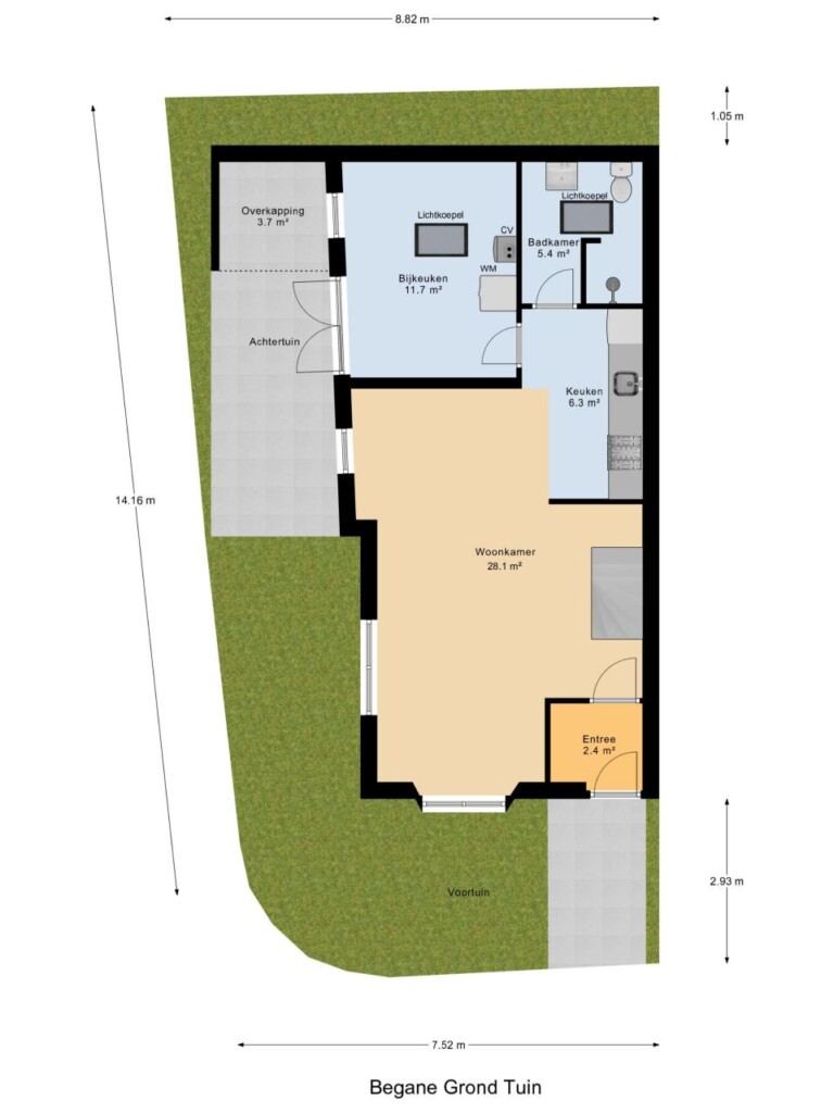
In de karakteristieke en populaire wijk Rode Dorp staat deze uitstekend onderhouden woning uit 1928. Een charmante jaren ’20 woning met een warme uitstraling, veel lichtinval en verrassend veel ruimte. Met een woonoppervlakte van 82 m² en een perceel van 120 m² is dit een ideale woning voor starters, stellen of een jong gezin.
De woning is door de jaren heen zeer goed onderhouden en volledig geïsoleerd, wat zorgt voor comfortabel en energiezuinig wonen. Authentieke sfeer en modern wooncomfort gaan hier hand in hand.
Indeling & sfeer
Bij binnenkomst valt direct de prachtige houten vloer op die zorgt voor een warme en stijlvolle basis. De woonkamer is heerlijk licht dankzij de grote raampartijen en heeft een prettige, open sfeer.
De moderne keuken is strak afgewerkt en van alle gemakken voorzien _ een fijne plek om te koken en samen te komen.
Ruimte & comfort
Op de verdieping bevinden zich drie slaapkamers, ideaal als slaap-, werk- of hobbykamer. Daarnaast beschikt de woning over veel bergruimte, wat het dagelijks wonen extra praktisch maakt.
Buitenruimte
Een absoluut pluspunt is het dakterras op het zuiden. Hier geniet je volop van de zon en heb je een heerlijke plek om te ontspannen of gezellig te borrelen met vrienden.
Kenmerken op een rij:
-Bouwjaar: 1928
-Gelegen in de geliefde wijk Rode Dorp
-Woonoppervlakte: 82 m²
-Perceeloppervlakte: 120 m²
-3 slaapkamers
-Mooie houten vloer
-Moderne keuken
-Veel lichtinval
-Dakterras op het zuiden
-Veel bergruimte
-Volledig geïsoleerd
-Zeer goed onderhouden
Kortom: een karaktervolle, instapklare woning op een fijne locatie in Leeuwarden waar je zó in kunt trekken.
































