Theo Mann Bouwmeesterstraat 9, Zaandam
Vraagprijs 499.000,-
**Open huis: Vrijdag 19 december van 15.00 tot 17.00 uur!**
Mensen met grote gezinnen, gezinsplannen of thuiswerkers opgelet!
Tussen molen De Held Jozua en het prachtige Natura 2000-gebied staat deze zonnige, goed onderhouden tussenwoning. Een unieke plek waar rust, natuur en wooncomfort samenkomen. Dankzij de extra dakopbouw biedt deze woning volop ruimte met maar liefst 5 slaapkamers. De huidige bewoners hebben hier maar liefst 26 jaar met veel plezier gewoond!
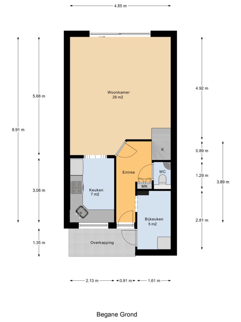
Begane grond
Via de nette voortuin treed je de hal binnen, waar zich de meterkast, toilet en trapopgang bevinden. Ook geeft de hal toegang aan de inpandige berging. De sfeervolle woonkamer is voorzien van plavuizen en vloerverwarming. De halfopen keuken is modern uitgevoerd en uitgerust met alle benodigde apparatuur, waaronder een inductiekookplaat, oven en vaatwasser. Via de schuifpui kom je in de verzorgde tuin van ongeveer 50 vierkante meter waar je heerlijk van het zonnetje kunt genieten. Hier bevindt zich ook de berging.
Eerste verdieping
Op de eerste verdieping bevinden zich drie goed bemeten slaapkamers, 1 voorzien van laminaat, 1 van Pvc, en de ander van Novilon. De moderne badkamer (2018) beschikt over een ruime douche, wastafel en een tweede toilet. Hier vind je ook de opstelling voor de wasmachine en droger.
Tweede verdieping
In 2004 is de tweede verdieping opgebouwd, waarmee twee ruime slaapkamers zijn gecreëerd. Beide slaapkamers zijn glad gestuukt en 1 voorzien van vloerbedekking, de andere van Pvc. Ook vind je hier een gezellig en zonnig dakterras (gericht op het zuiden).
Duurzaamheid & onderhoud
De woning is voorzien van 14 zonnepanelen, dus energiezuinig. De woning is voorzien van kunststof ramen en kozijnen en behoeft dus nauwelijks schilderwerk. De woning beschikt over Energielabel A.
De omgeving
De woning is gelegen in de wijk Westerwatering in Zaandam, een moderne en rustige gezinswijk met veel groen en een prettig woonklimaat. De buurt staat bekend om de kindvriendelijke straten, lage verkeersdruk en goede voorzieningen: supermarkten, scholen, kinderopvang en sportfaciliteiten zijn op korte fiets- of loopafstand. Het centrum van Zaandam en het treinstation zijn goed bereikbaar, evenals de uitvalswegen richting Amsterdam.
Daarnaast bevindt de wijk zich in de directe nabijheid van het Natura 2000 gebied Polder Westzaan: een open, natuurrijk gebied, waardoor je binnen handbereik bent van rust, groen en variatie in buitenactiviteiten.
English version
Open House: Friday, 19 December from 3:00 PM to 5:00 PM!
Attention families with large households, future family plans, or those working from home!
Situated between the historic De Held Jozua windmill and the beautiful Natura 2000 nature reserve, this sunny and well-maintained mid-terrace house offers a unique living environment where peace, nature, and comfort come together. Thanks to the additional roof extension, the property offers ample space with no fewer than five bedrooms. The current owners have lived here with great pleasure for 26 years!
Ground Floor
You enter the property through the well-kept front garden into the hallway, which provides access to the meter cupboard, toilet, staircase, and the internal storage room.
The cosy living room features tiled flooring with underfloor heating. The semi-open kitchen has a modern design and is fully equipped with all necessary appliances, including an induction hob, oven, and dishwasher.
Through the sliding doors, you reach the well-maintained garden of approximately 50 m², where you can fully enjoy the sunshine. A storage shed is also located here.
First Floor
The first floor offers three well-proportioned bedrooms, all finished with laminate flooring. The modern bathroom (2018) includes a spacious shower, washbasin, and a second toilet. There is also space for a washing machine and dryer.
Second Floor
The second floor was added in 2004, creating two spacious bedrooms. Both rooms have smooth plastered walls and laminate flooring. This floor also features a cosy and sunny south-facing roof terrace.
Sustainability & Maintenance
The property is equipped with 14 solar panels, making it energy-efficient. It features uPVC window frames, requiring minimal maintenance, and has an Energy Label A.
Surroundings
The house is located in the Westerwatering neighbourhood in Zaandam, a modern and quiet residential area ideal for families. The area is known for its child-friendly streets, low traffic, and excellent amenities. Supermarkets, schools, childcare facilities, and sports facilities are all within easy cycling or walking distance.
The centre of Zaandam and the train station are easily accessible, as are major roads leading towards Amsterdam.
In addition, the neighbourhood is in close proximity to the Natura 2000 Polder Westzaan nature reserve_an open, green area offering peace, nature, and a wide range of outdoor activities right on your doorstep.












































