Een huis met karakter, klaar voor een nieuw verhaal
Stel je voor: een zonnige ochtend, het geluid van vogels, de geur van koffie. Je loopt je tuin in, ademt de rustige straat in _ en beseft dat dit precies het leven is dat je zocht. Welkom op Nautilusstraat 114.
Een woning met ziel
Gebouwd in 1936, staat deze karaktervolle jaren ’30 woning als een rots in de branding. De solide constructie, de authentieke indeling en de tijdloze bouwstijl vertellen een verhaal van decennia, maar het vervolg? Dat schrijf jij. Want de basis is ijzersterk en doordacht, het enige waar de woning op wacht ben jij.
Jij kunt hier aan een nieuw hoofdstuk beginnen.
De indeling
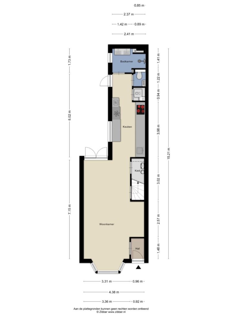
Binnenkomend via de hal _ met praktische garderoberuimte _ stap je de woonkamer in, compleet met een sfeervolle erker die direct de show steelt. Dankzij de bijzondere hoekige vorm biedt deze ruimte volop mogelijkheden: een gezellige zithoek aan de voorkant, een ruimtelijke eethoek richting de tuin, of precies andersom. Lichte raampartijen zorgen voor een heerlijke lichtinval en de plavuizenvloer loopt naadloos door vanuit de hal.
Achter in de woonkamer bevindt zich de keuken, voorzien van nette inbouwapparatuur: een inductiekookplaat, roestvrijstalen afzuigkap, oven, ingebouwd koffieapparaat én vaatwasser. Koken hier is geen straf, maar een plezier. Aansluitend vind je een aparte ruimte voor je was- en verwarmingsinstallatie (HR cv-ketel), een volledig betegeld toilet met hangend closet en fonteintje, én een badkamer uitgerust met een douchecabine en stijlvol wastafelmeubel.
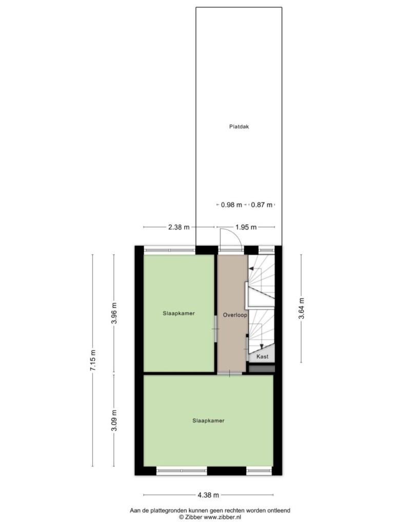
De trap aan de achterzijde van de woonkamer leidt je naar de eerste verdieping, waar twee ruime slaapkamers wachten. De lichte master bedroom aan de voorzijde biedt ruimschoots plek voor een tweepersoonsbed én extra meubilair. De achterkamer, even licht en uitnodigend, is perfect als kinderkamer, logeerkamer of thuiskantoor. Op de overloop is recent een airco geplaatst die zowel kan koelen als verwarmen wat een fijn extra is welke het hele jaar door van pas komt.
En dan is er nog de tweede verdieping: een veelzijdige ruimte met dakkapel aan de achterzijde. Werkkamer? Hobbyruimte? Fitnessstudio? Alles kan. Hier beslis jij.
Buiten lonkt een diepe, rustig gelegen achtertuin _ een fijne plek voor spelende kinderen, een avond met vrienden, of gewoon heerlijk lanterfanten in de late zomerzon. Achter in de tuin ligt de stenen geïsoleerde berging welke voorzien is van een airco en een achterom.
De buurt: rustig wonen, alles binnen handbereik
De woning ligt op fietsafstand van het centrum van Tilburg en op loopafstand van een supermarkt. De dichtstbijzijnde supermarkten zijn de Lidl op de Bosscheweg en een ALDI aan de Ringbaan Oost, en Basisschool Armhoefse Akker is de dichtstbijzijnde basisschool in de omgeving.
Op de fiets ben je in een kwartiertje midden in de bruisende binnenstad, met een groot winkelaanbod, levendige terrassen en uitstekende restaurants. En dan is er de Spoorzone _ op nog geen tien minuten fietsen. Dit creatieve, innovatieve en groene stadsdeel is een plek waar de historie van de stad in een hip en industrieel jasje is gestoken _ met culturele hotspot de LocHal in een voormalige locomotiefhal als blikvanger. In de nabij gelegen LocHal vind je niet alleen een bibliotheek, maar ook ruim 300 werk- en studieplekken, vergaderzalen, een expositieruimte en een stadscafé. Het Spoorpark biedt ruimte voor een frisse wandeling, een picknick of sportieve activiteiten. Kortom: altijd wat te beleven, maar thuis is het stil en groen.
De bereikbaarheid per auto is eveneens uitstekend dankzij de ligging nabij de uitvalswegen, en ook het openbaar vervoer is goed geregeld in de wijk.
Kenmerken op een rij
-Bouwjaar: 1936
-Woonoppervlak: 101 m²
-Perceeloppervlakte: 139 m²
-Inhoud: 358 m³
-Energielabel: C (opgesteld maart 2026)
-NEN 2580 meetrapport aanwezig
Jouw volgende stap
Dit huis heeft alles wat je nodig hebt om iets moois van te maken: ruimte, licht, ligging en een solide basis. Het enige wat nog ontbreekt, ben jij.
Nieuwsgierig geworden? Plan een bezichtiging en kom zelf voelen of dit het huis is waar jouw verhaal begint. Bel ons op 0800-1800 _ we maken graag een afspraak voor je.








































