Ben je op zoek naar een keurig onderhouden eengezinswoning op een uitstekende locatie in Hilversum? Kom dan zeker eens een kijkje nemen bij deze charmante tussenwoning uit 1903. Deze woning is uiterst praktisch ingedeeld met een royale woonkamer die naadloos aansluit op de open leefkeuken. Met circa 99 m² woonoppervlakte is dit een heerlijk gezinshuis. De woning beschikt over twee volwaardige slaapkamers en een derde, compact kamer die momenteel ideaal wordt benut als wasruimte. Vanuit de tuindeur aan de achterzijde van de woning bereik je de diepe tuin met overkapping en ruime stenen berging.
De woning ligt in een geliefde, kindvriendelijke wijk met een rustige en gemoedelijke sfeer en bevindt zich op een uitstekende locatie met veel faciliteiten in de buurt. Zowel het gezellige winkel- en culinaire centrum van Hilversum, als het NS-station liggen slechts op enkele minuten loopafstand. De belangrijke uitvalswegen A1 en A27 zijn alle binnen handbereik. Supermarkten, scholen, kinderopvang, kortom eigenlijk gewoon alle belangrijke voorzieningen voor de dagelijkse behoeften zijn in de nabije omgeving aanwezig. Voor de nodige ontspanning is Hilversum natuurlijk bijzonder fraai gelegen tussen hei, bos en water. Aan natuurschoon geen gebrek!
Indeling:
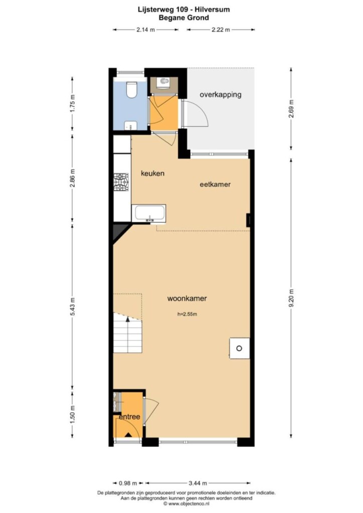
Begane grond: entree, hal, woonkamer met aansluiting op eetkamer en open keuken voorzien van inbouwapparatuur (gasfornuis, afzuigkap, magnetron, koelkast, vaatwasser), toilet met modern hangcloset, hal met openslaande deur naar diepe tuin met externe stenen berging.
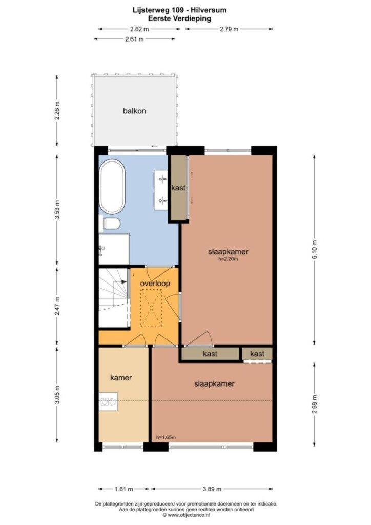
Eerste verdieping: ruime overloop, drie in grootte variërende slaapkamers, waarvan twee met inbouwkasten, badkamer uit 2010 met ruime douche, ligbad, wastafel, tweede toilet en schuifpui naar balkon. De badkamer is voorzien van elektrische vloerverwarming.
Tweede verdieping: ruime vliering
Bijzonderheden:
-Begane grond: volledig voorzien van vloerverwarming
-Werkende houtkachel
-Screens 1e etage voorzijde
-Elektrisch knik-arm zonnescherm voorzijde
-Grote slaapkamer (balkon bij slaapkamer getrokken)
-CV-ketel uit 2022
-Ruime vliering
Wij kunnen ons voorstellen dat je graag deze woning wilt komen bekijken. Je bent van harte welkom, onze makelaar leidt je graag rond!
































