* Please find English text below.
KLUSSERS & CREATIEVELINGEN OPGELET!
Klimopstraat 35-A _ Bloemenbuurt, Den Haag
In de populaire Bloemenbuurt tref je dit royale hoekappartement van 109 m² op de topetage. De voormalig 4-kamerwoning biedt volop mogelijkheden om geheel naar eigen smaak te moderniseren. Een unieke kans om jouw droomhuis te creëren!
Dankzij de ligging op de hoek geniet je van veel lichtinval en extra ruimte. Bovendien biedt de woning mogelijkheden om een dakopbouw of een prachtig dakterras te realiseren (na het verkrijgen van de benodigde vergunning).
Het appartement is volledig voorzien van kunststof kozijnen met deels HR++ glas en de erfpacht is eeuwigdurend afgekocht _ een groot pluspunt.
De Buurt
De Bloemenbuurt is een gezellige en levendige wijk op loopafstand van strand en duinen. In de directe omgeving vind je diverse winkelstraten, zoals de Goudsbloemlaan, Thomsonlaan en Fahrenheitstraat, met een breed aanbod aan boetiekjes, delicatessenwinkels, restaurants en hippe koffietentjes. Ook sportfaciliteiten, scholen en openbaar vervoer (tram 12, 3 en bus 24) zijn op steenworp afstand gelegen _ ideaal!
Indeling
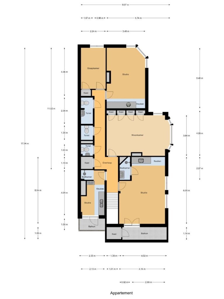
De woning komt uit de verhuur en werd eerder gesplitst in drie zelfstandige woonruimtes. Dat maakt dit appartement bij uitstek geschikt voor een grondige verbouwing waarbij je de indeling volledig naar jouw wensen kunt aanpassen.
Kortom: een woning met enorm veel potentie op een toplocatie! Ben jij op zoek naar een ruim appartement dat je geheel naar eigen smaak kunt inrichten, in een bruisende en populaire buurt? Dan is Klimopstraat 35-A precies wat je zoekt.
Plan snel een bezichtiging!
Bijzonderheden
– Bouwjaar: 1924
– Woonoppervlakte: 109 m²
– Inhoud: ca. 373 m³
– Mogelijkheid tot realiseren van dakterras of dakopbouw
– Kunststof kozijnen met dubbel glas (deels HR++)
– Voorlopig / concept zijnde 1 appartement energielabel E
– Dak vernieuwd circa 2015
– Eeuwigdurend erfpacht, canon afgekocht
– VvE: 1/3e aandeel, ingeschreven in KvK, de maandelijkse bijdrage wordt bij verkoop (overdracht) geactiveerd.
– Collectieve opstalverzekering aanwezig
– Onderhoudssituatie buitenzijde: goed
– CV-ketel uit 2015
– Voorlopig energielabel E
– Snelle oplevering mogelijk
– Uitstekende ligging t.o.v. winkels, strand, scholen en OV
– Ouderdoms- en materialenclausule van toepassing
– Niet-zelfbewoningsclausule van toepassing
Bezichtiging
Wil je deze schitterende woning bezichtigen? Plan snel een persoonlijke bezichtiging!
Hypotheekadvies
Twijfel je of deze woning binnen je budget past? Onze onafhankelijke hypotheekadviseurs maken graag een gratis en vrijblijvende berekening. Vaak kan er nog dezelfde dag een afspraak worden ingepland. Desgewenst begeleiden wij de volledige financieringsaanvraag.
English text:
ATTENTION DIY ENTHUSIASTS & CREATIVES!
Klimopstraat 35-A _ Bloemenbuurt, The Hague
In the popular Bloemenbuurt you’ll find this spacious corner apartment of 109 m² on the top floor. Originally a 4-room home, it offers plenty of possibilities to modernize entirely to your own taste. A unique opportunity to create your dream home!
Thanks to its corner location, the apartment benefits from abundant natural light and extra space. In addition, there are possibilities to realize a rooftop extension or a stunning roof terrace (subject to obtaining the necessary permits). The apartment is fully fitted with plastic window frames, partly with HR++ glazing, and the ground lease has been perpetually bought off _ a big plus.
The Neighborhood
Bloemenbuurt is a lively and charming district within walking distance of the beach and dunes. In the immediate vicinity you’ll find several shopping streets, such as the Goudsbloemlaan, Thomsonlaan, and Fahrenheitstraat, offering a wide range of boutiques, delicatessen shops, restaurants, and trendy coffee bars. Sports facilities, schools, and public transport (tram lines 12, 3 and bus 24) are just around the corner _ ideal!
Layout
The property was previously rented out and had been split into three self-contained living units. This makes the apartment especially suitable for a thorough renovation, allowing you to fully customize the layout to your own wishes. In short: a home with enormous potential in a prime location!
Are you looking for a spacious apartment that you can completely design to your own taste, in a vibrant and popular neighborhood? Then Klimopstraat 35-A is exactly what you’ve been searching for. Schedule a viewing soon!
Features
-Year of construction: 1924
-Living area: 109 m²
-Volume: approx. 373 m³
-Potential to create roof terrace or rooftop extension
-Plastic window frames with double glazing (partly HR++)
-Provisional / draft energy label E (for 1 apartment)
-Roof renewed around 2015
-Perpetual ground lease, canon redeemed
-Homeowners’ association: 1/3 share, registered with Chamber of Commerce, monthly contribution will be activated upon transfer of ownership
-Collective building insurance in place
-Exterior condition: good
-Central heating boiler from 2015
-Quick delivery possible
-Excellent location near shops, beach, schools and public transport
-Age and materials clause applicable
-Non-occupancy clause applicable





























