Buitenbassinweg 368, 3063 TC Rotterdam
Vraagprijs: € 439.000 k.k.
6e verdieping | Uitzicht op de Maas | 3-kamerappartement | Balkon ZO | Lift
Op de zesde verdieping van een verzorgd complex met lift ligt dit instapklare 3-kamerappartement met vrij uitzicht op de Maas en een zonnig balkon op het zuidoosten. Een comfortabel en praktisch ingedeeld appartement op een gewilde locatie in De Esch.
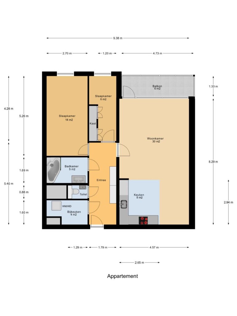
De entree maakt direct een verzorgde indruk. De maatwerk kastenwand met geïntegreerde zitbank biedt veel bergruimte voor jassen en schoenen en zorgt voor een nette, georganiseerde binnenkomst.
Vanuit de centrale hal zijn alle vertrekken bereikbaar. Hier bevindt zich tevens een separate inpandige berging met opstelling voor wasmachine, droger en mechanische ventilatie-unit. Daarnaast zijn er praktische linnenkasten in de hal aanwezig voor extra bergruimte.
De woonkamer is ruim en licht dankzij de brede raampartijen en het vrije uitzicht richting de Maas. De indeling biedt voldoende ruimte voor zowel een comfortabele zithoek als een eethoek. De woonkamer is voorzien van airconditioning (verwarmen en koelen).
Het balkon op het zuidoosten vormt een prettige buitenruimte op hoogte, waar u in de ochtend en middag van de zon geniet. Het balkon is voorzien van ingebouwde vloerspots en buitenstopcontacten, wat zorgt voor extra gebruiksgemak.
De open keuken staat in directe verbinding met de leefruimte en is uitgevoerd in hoogglans wit. De keuken beschikt over Siemens inbouwapparatuur, waaronder een inductiekookplaat, combi-oven, geïntegreerde vaatwasser en koel-/vriescombinatie. Het granieten werkblad zorgt voor een duurzame en stijlvolle afwerking.
Beide slaapkamers zijn bereikbaar vanuit de hal. De hoofdslaapkamer biedt voldoende ruimte voor een tweepersoonsbed en kastruimte. De tweede slaapkamer is geschikt als werk-, kinder- of logeerkamer.
De badkamer is vernieuwd en uitgevoerd met een whirlpoolbad, inloopdouche met Grohe douchesysteem, wastafelmeubel met hardstenen blad en designradiator. Het toilet is separaat.
De erfpachtcanon is afgekocht tot 1 april 2039. De huidige erfpachttermijn loopt tot 1 april 2089. Voor een koper bestaat de mogelijkheid om de erfpacht aanvullend af te kopen tot het einde van deze termijn.
De Vereniging van Eigenaars is actief en professioneel beheerd en beschikt over een vastgesteld Meerjarenonderhoudsplan (MJOP 2023_2037). Groot onderhoud, waaronder liftrevisie, is recent uitgevoerd conform planning.
________________________________________
Complex
Op de begane grond bevindt zich de lichte, representatieve centrale entree met marmeren vloer. Hier zijn de postbussen, het bellentableau met videofooninstallatie, twee liften en het trappenhuis gesitueerd. Tevens bevinden zich hier de gezamenlijke bergingen.
Rondom het complex is ruime parkeergelegenheid aanwezig via het vergunningensysteem van de Gemeente Rotterdam.
________________________________________
Ligging
Gelegen in Kralingen, in de groene en ruim opgezette wijk De Esch, woont u hier direct aan de Maas en natuurgebied De Esch. Een locatie waar rust en ruimte worden gecombineerd met de nabijheid van het centrum van Rotterdam.
Op loopafstand bevinden zich een kleinschalig winkelcentrum, supermarkt, apotheek, scholen en sportvoorzieningen. De campus van de Erasmus Universiteit Rotterdam ligt in de directe omgeving.
De tramhalte ligt op enkele minuten lopen en brengt u in circa 10 minuten naar het centrum van Rotterdam. Ook per fiets is de binnenstad uitstekend bereikbaar. De uitvalswegen liggen direct aan de rand van de wijk en zijn binnen enkele minuten bereikbaar.
________________________________________
Kenmerken
-Woonoppervlakte: ca. 83 m²
-Balkon: ca. 6 m² (zuidoost)
-3-kamerappartement (2 slaapkamers)
-Gelegen op de 6e verdieping
-Vrij uitzicht op de Maas
-Complex met twee liften
-Energielabel C
-Bouwjaar: 1991
-Verwarming en warm water via stadsverwarming
-Airconditioning in de woonkamer
-Keuken met Siemens inbouwapparatuur
-Vernieuwde badkamer met whirlpoolbad
-Inpandige berging / wasruimte
-Erfpachtcanon afgekocht tot 1 april 2039 (looptijd tot 1 april 2089)
-VvE-bijdrage: ca. € 176,- per maand
-Oplevering: in overleg






























