Prachtige 6-kamer hoekwoning aan de Anthuriumsingel 63, Berkel en Rodenrijs
Riante gezinswoning met 5 slaapkamers, zonnige tuin op het zuiden en ideale ligging in Parc Rodenrijs
Wonen met ruimte, comfort en vrijheid
Welkom op de Anthuriumsingel 63 te Berkel en Rodenrijs! Deze fraaie 6-kamer hoekwoning is de ideale gezinswoning waar ruimte, licht en comfort samenkomen. Met maar liefst vijf slaapkamers, een zonnige tuin op het zuiden en een ligging in de moderne en kindvriendelijke wijk Parc Rodenrijs is dit een huis waar je je direct thuis zult voelen.
Ligging en omgeving
De woning is gelegen aan een rustige singel met om de hoek een groot grasveld en een speeltuin, ideaal voor gezinnen met kinderen. Kinderdagverblijven, scholen en een Albert Heijn supermarkt zijn op loopafstand, waardoor praktisch woongenot binnen handbereik is. Het bruisende centrum van Berkel en Rodenrijs, met een diversiteit aan winkels, restaurants, natuurspeelplaats “Tuin van Floddertje” én het prachtige natuurgebied ‘Zuidpolder’ bevinden zich op korte fietsafstand. Bovendien zijn zowel Rotterdam als Den Haag uitstekend bereikbaar via de nabijgelegen uitvalswegen en het openbaar vervoer.
Indeling van de woning
Begane grond
Via de lichte entree bereikt u het moderne toilet, een praktische ruime berging (zowel via de buitenzijde als vanuit de hal bereikbaar) en de gezellige woonkamer. De royale L-vormige woonkamer is voorzien van een onderhoudsvriendelijke gietvloer met vloerverwarming, glad gestucte wanden en grote ramen voor een heerlijke lichtinval. Via de openslaande deur stapt u zo de zonnige tuin op het zuiden in, voorzien van een handige achterom. De open, lichte keuken is uitgerust met een 5-pits inductiekookplaat, afzuigkap, koelkast, combimagnetron en vaatwasser. Dankzij de ruime voorraadkast heeft u altijd alles bij de hand.
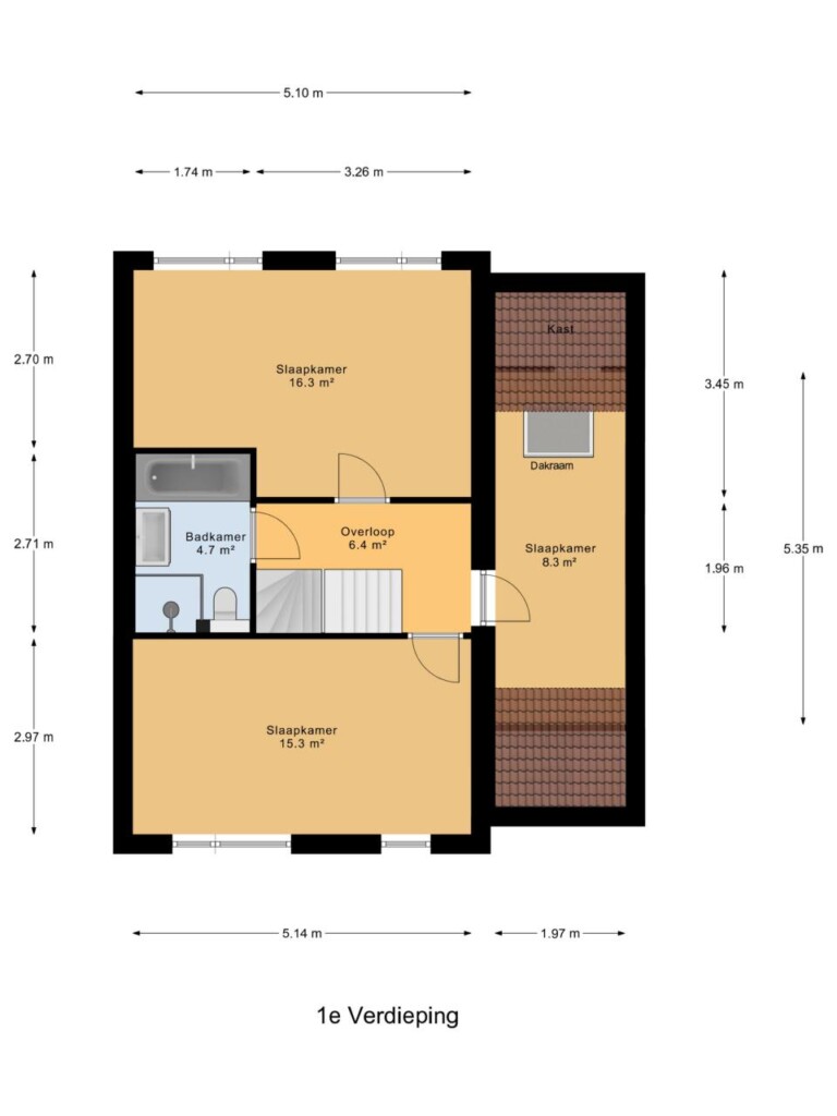
Eerste verdieping
Op deze etage bevinden zich drie royale slaapkamers, allen voorzien van een nette laminaatvloer .De slaapkamer aan de achterzijde is voorzien van rolluiken De badkamer is een plaatje: uitgerust met een regendouche, ligbad, tweede toilet en een stijlvol wastafelmeubel. Hier is het lekker ontspannen na een drukke dag.
Tweede verdieping
Dankzij de dakkapellen aan zowel de voor- als achterzijde is deze verdieping enorm ruim. Twee slaapkamers zijn voorzien van rolluiken en airconditioning _ ideaal voor warme zomers en een goede nachtrust. De cv-combiketel is netjes weggewerkt in een vaste kast. Daarnaast is er een praktische hoek voor de wasmachine en droger, en er is een extra bergvliering: perfect voor het opbergen van seizoensspullen.
Bijzonderheden
– 14 zonnepanelen (2024): energiezuinig en duurzaam
– Twee dakkapellen voor extra ruimte en licht
– Riante hoekwoning met vijf slaapkamers
– Achterzijde eerste etage voorzien van rolluiken
– Rolluiken en airco op de tweede verdieping
– Voldoende parkeergelegenheid in de directe omgeving
– Rustige ligging in een kindvriendelijke wijk _ wonen met een dorps karakter én stedelijke voorzieningen
Kortom
Een instapklare, riante hoekwoning met alles wat een modern gezin wenst: ruimte, comfort, moderne afwerking en een zonnige tuin. Dankzij de uitstekende ligging nabij scholen, winkels, groen en uitvalswegen is dit een plek waar u met veel plezier zult wonen.
Nieuwsgierig geworden? Neem snel contact op voor een bezichtiging en ervaar zelf het woongenot aan de Anthuriumsingel 63 in Berkel en Rodenrijs!























































